امروز 11 بهمن 1404

فریلنسر معماری | Revit | مدل‌سازی، نقشه اجرایی، اتوکد به رویت

سیدمصطفی تدریسی

فریلنسر معماری | Revit | مدل‌سازی، نقشه اجرایی، اتوکد به رویت

سیدمصطفی تدریسی

فریلنسر معماری | Revit | مدل‌سازی، نقشه اجرایی، اتوکد به رویت

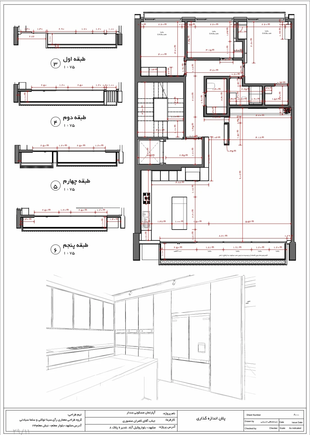
من فریلنسر معماری مسلط به نرم‌افزار Revit هستم.
انجام مدل‌سازی معماری، تهیه نقشه‌های اجرایی و تبدیل فایل‌های AutoCAD به Revit را با دقت و تحویل منظم انجام می‌دهم.
تمرکز من روی خروجی تمیز، قابل اجرا و مطابق نیاز کارفرماست.

25 آذر 1404

مهارت‌های استفاده شده

Revit

25 آذر 1404

سیدمصطفی تدریسی سیدمصطفی تدریسی

سیدمصطفی تدریسی

سایر نمونه‌کارهای